
Mülheim an der Ruhr
Neubau Ärztehaus am EKM
Das Ev. Krankenhauses Mülheim an der Ruhr erweitert den bestehenden Campus um ein Ärztehaus und ein Parkhaus. Die enge Vernetzung zwischen Krankenhaus und niedergelassenen Ärzten wird durch die neuen Flächen mit sechs Arztpraxen, einer Apotheke und einem Sanitätshaus weiter optimiert.
Die Neubauplanungen besetzen die letzten noch unbebauten Flächen des Krankenhausgeländes. Der hier vorhandene Grünbereich bleibt gleichwohl erhalten und wird durch die neuen Baukörper als grüner Garten im Blockinnenbereich neu definiert. Das Ärztehaus und das östlich angrenzende neue Parkhaus bilden zur Schulstraße eine städtebauliche Raumkante. Durch die neuen Funktionen und das Parkplatzangebot erhält der südliche Geländeeingang zudem neue Bedeutung. Folgerichtig entsteht hier räumlich gefasst ein kleiner Vorplatz, der als Verteilerfläche zu den verschiedenen Praxisangeboten auf dem Campus dient und um eine neue Taxivorfahrt und Kurzparkerzone ergänzt wird.

Ein stützenfreier Gebäudeeinschnitt auf der südwestlichen Gebäudeecke öffnet das Gebäude zum Vorplatz, hinter der zweigeschossigen Glasfassade finden sich der Verkaufsraum der Apotheke im Erdgeschoss und der Geräteraum der Physiotherapie im Obergeschoss. Während die Obergeschosse mit weißer Putzfassade und anthrazitfarbenen Fensterprofilen schlicht gehalten sind und Ihre Leichtigkeit aus der spielerischen und versetzten Anordnung der raumhohen Fensteröffnungen beziehen wird der Gebäudesockel steinern abgesetzt. Natursteinverkleidungen aus geschliffenem Jura kommen hier zum Einsatz. Die Strenge des Materials wird durch den variablen Einsatz unterschiedlicher Formate gebrochen. Ein weiteres markantes Merkmal der Fassade sind die auf beiden Gebäudeseiten angeordneten vertikalen hinterleuchteten Schriftzüge „Ärztehaus am EKM“. Die Sammlung aller Praxen unter dieser Dachmarke und die einheitliche Lichtwerbung der Ladenlokale fußen auf dem Beschilderungs- und Werbekonzept der Architekten und finden sukzessive auch für die weitere Außenbeschilderung auf dem Campus Anwendung.
Standort: Schulstraße 13, 45468 Mülheim an der Ruhr
Bauherr: Ev. Krankenhaus Mülheim
Fläche: ca. 4.780 m² BGF
Parkhaus 211 Stellplätze
Bausumme: ca. 10.990.000 €
Leistungsphasen lt. HOAI: 1-9

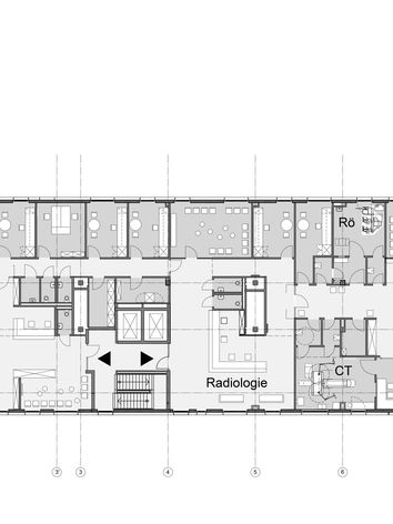
Im fünfgeschossigen Ärztehaus entstehen im Sockelgeschoss Ladenlokale für eine Apotheke und ein Sanitätshaus, entlang einer an das Foyer anschließenden inneren „Ladenstraße“ mit verglasten und variabel öffenbaren Übergängen in die Verkaufsräume. In den Obergeschossen ziehen insgesamt sechs Arztpraxen ein. Der flexible Grundriss mit zusammenschaltbaren Nutzungseinheiten ermöglicht Praxisgrößen zwischen 150 und 800 m² mit einer variablen Anordnung von ein bis drei Praxen je Geschoss direkt angrenzend an das zentrale Treppenhaus.
Das östlich anschließende Parkhaus nutzt das Fluchttreppenhaus des Parkhauses zur internen fußläufigen Erschließung. Es entsteht als Stahlverbundbau aus Systembauteilen mit einer vorgehängten Fassade aus geschosshohen Profilitgläsern. Insgesamt sind hier 211 Stellplätze vorhanden.
Der Neubau des Ärztehauses stellt als Stahlbetonskelettbau mit Flachdecken eine bestmögliche Ausnutzung der Geschosshöhen und einen flexiblen Ausbau mit maximaler Installationsfreiheit sicher. Der weitere Innenausbau erfolgt neben den aussteifenden Kernelementen ausschließlich in Metallständerwerkswänden.

Die Wärmeversorgung erfolgt umweltfreundlich über Fernwärme, ein flexibles Lüftungs- und Kältekonzept ermöglicht die Versorgung unterschiedlichster Fachrichtungen bis hin zu einer Radiologischen Gemeinschaftspraxis mit entsprechenden Großgeräten. Die Lüftungs- und Kältetechnik ist auf dem Dach des Gebäudes angeordnet.
Neben der Gesamtplanung zeichnen die Architekten auch für den Innenausbau einzelner Praxen mit Materialkonzept, Tischlermöbeln und losem Mobiliar verantwortlich. Die Radiologischen Gemeinschaftspraxis im obersten Geschoss ist durchgehend in weißem Mobiliar auf warmen Vinylböden in Eichenoptik gehalten. Die Tresen aus weißem Mineralwerkstoff nehmen sich bewusst zurück, im Vordergrund steht der lichtdurchflutete Innenraum des Praxisfoyers, der mit dem angrenzenden verglasten Wartebereich eine beidseitige Belichtung ermöglicht. Gelbe und Blaue Farbakzente im Mobiliar und großflächige blaugoldene Wanddrucke gliedern den Raum. Die hier eingesetzten floralen Motive sind farblich verfremdete Röntgenaufnahmen und bilden den Praxisschwerpunkt auch architektonisch ab.




















